画面从平面走到立体,声音也从平面的环绕声走到空间的方位立体。全景声还音系统具备了声道和对象两者的优点,混录一次,各处播放,捕捉了原创者所有的意图,影院观众获得了以前未有的身临其境的体验,观众融为电影的一部分,自然而逼真的声轨,观众与故事合二为一,输出取决于回放环境。
银幕扬声器
中置扬声器应总是摆放在银幕的中线上,而不论银幕具体位于影厅的哪个位置。在传统影院中,左侧的银幕扬声器和右侧的银幕扬声器均应摆放在1.85:1和2.39:1图像之间的位置上,对于银幕宽度超过12米的影厅,增加两只银幕扬声器将帮助整个银幕获得更流畅的声音移动效果。新增两只扬声器之后,应将左中扬声器和右中扬声器分别摆放在中置扬声器与左侧银幕扬声器和右侧银幕扬声器之间。在画面高度不变的传统影厅中,应竖直摆放银幕扬声器,并将扬声器的声学高度置于银幕高度的三分之二左右。
银幕低频扬声器
用于播放低频效果通道的低音扬声器应安装在银幕后的底面与后墙相接的位置上,或齐平地嵌入银幕墙。使用多个低音扬声器时,建议将其放在一起以通过偶和效应增强声音效果。
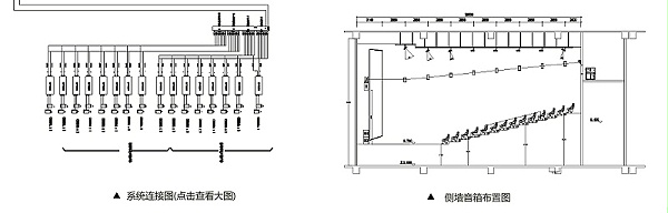
环绕扬声器
全景声环绕音箱能够定位从影厅任何位置发出的声音。 为达到此目的,应在影厅的侧墙和天花板上增加一些环绕声扬声器。 侧墙上的环绕声扬声器银幕边缘位置开始放置环绕声扬声器延伸至房间后墙。例如,电影中直升机的声音就可以被当做一个声音对象进行处理,当直升机在银幕上飞行时,它的声音会依次经过观众席两侧和后面的每个扬声器,实现了极为流畅的声音移动。影厅天花板上应安装两列扬声器,从银幕一直排列至后墙,这两列扬声器应分别与左中扬声器(LC)和右中扬声器(Rc)的银幕声道对齐,天花板上的扬声器应总是以银幕的对称排列。 顶部环绕声扬声器的设计特性应与侧墙和后墙的环绕声扬声器相一致。以模拟画面中从上方来的声音,例如直升机在头顶盘旋、打雷声、下雨声等等。而这种头顶的环绕声是之前的声音系统中所缺乏的。添加了头顶的声场后,真正实现了包围观众的声场,使观众能沉浸在影片当中。
环绕声低频扬声器
绕声扬声器相一致。以模拟画面中从上方来的声音,例如直升机在头顶盘旋、打雷声、下雨声等等。而这种头顶的环绕声是之前的声音系统中所缺乏的。添加了头顶的声场后,真正实现了包围观众的声场,使观众能沉浸在影片当中。